Description
Welcome to Shaver Green! Shaver Green is an affordable housing property in Portland, OR that features 1, 2, and 3 bedroom floor plans. Shaver Green is an income restricted property. Applicants must meet these income restrictions in order to qualify for homes at Shaver Green. All units are equipped with air conditioning, dishwashers, large closets, high ceilings, and balconies. All residents have access to the community room, gated parking, storage units, and secure bike storage. Please note that there is a no pet policy. Service/Companion animals must be approved through a reasonable accommodation process. Please contact the leasing office for more details.
Shaver Green is located in North Portland. There is so much to do outside of the community! Shaver green is conveniently located near grocery stores, shopping areas, restaurants, post offices, schools, city parks, and public transportation. Come in and see our professional management team today. They would love to show you around, so you can see for yourself why Shaver Green is an affordable solution for comfortable, quality living. Schedule a tour today!
2025 Income Limits
|
Persons |
1 |
2 |
3 |
4 |
5 |
6 |
7 |
8 |
|
60% AMI |
$52,140 |
$59,580 |
$67,020 |
$74,460 |
$80,460 |
$86,400 |
$92,340 |
$98,340 |
We are pledged to the letter and spirit of U.S. policy for the achievement of equal housing opportunity throughout the Nation. We encourage and support an affirmative advertising and marketing program in which there are no barriers to obtaining housing because of race, color, religion, sex, handicap, familial status, or national origin.
| Name | Rent* | Bed /Bath | SQ. Feet** | Layout | Available |
|---|---|---|---|---|---|
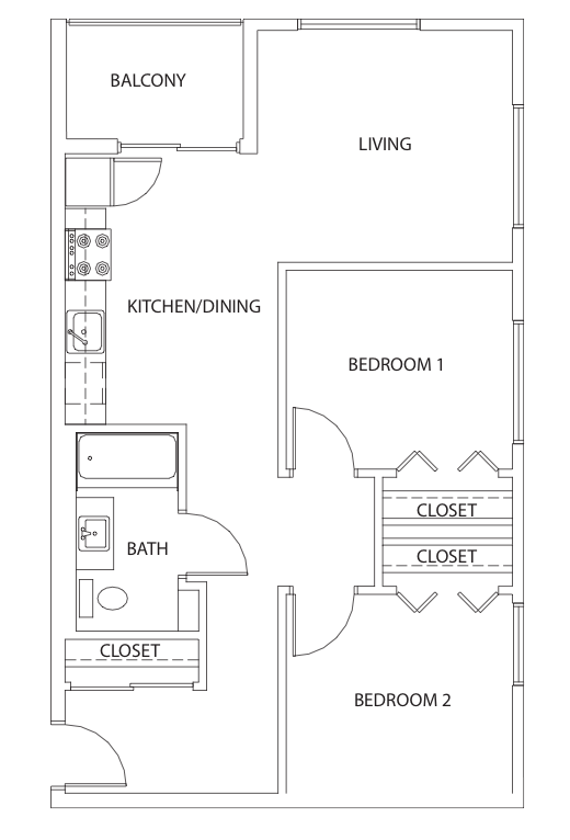
| 1 Bedroom | $1284 - $1284 | 1 bed / 1 bath | 600 Sq. Ft. | Plan Layout |
|
| 2 Bedroom | $1536 - $1536 | 2 bed / 1 bath | 780 Sq. Ft. | Plan Layout |
|
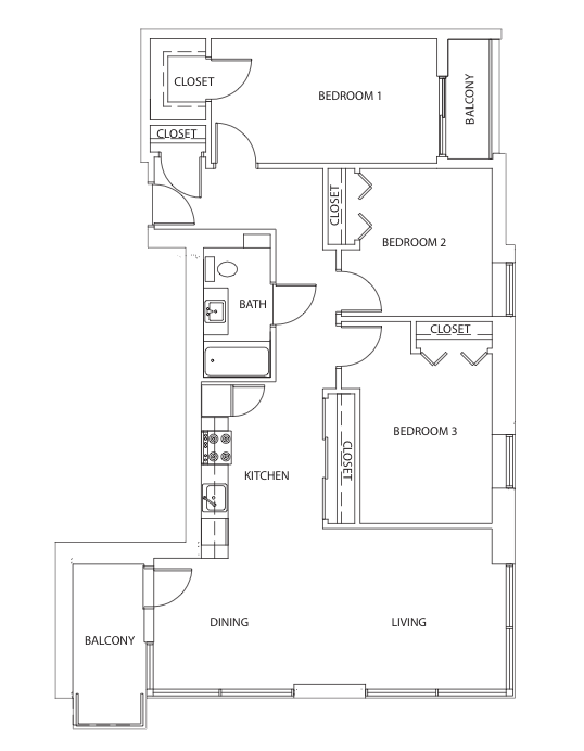
| 3 Bedroom | $1770 - $1770 | 3 bed / 1 bath | 880 Sq. Ft. | Plan Layout |
|
By Floorplan
1 Bedroom
2 Bedroom
3 Bedroom
By Price
$1284 - $1284
$1536 - $1536
$1770 - $1770
By Square Feet
600 sq feet
780 sq feet
880 sq feet

- 600
- $1284 - $1284
Neighborhood Amenities
- Banking
- City Parks
- Close to Bus Line
- Close to Library
- Coffee House
- Gas Stations
- Grocery Stores
- Medical Facilities
- Post Office
- Public Transportation
- Restaurants
- Schools
- Shopping
Apartment Amenities
- Bike Storage
- Cable TV Access
- Carpet
- Ceiling Fans
- Dishwasher
- Heat (Electric)
- Internet Access
- Microwave
- No Smoking
- Oven
- Patio/ Balcony
- Range / Oven (Electric)
- Refrigerator
- Storage Space
- Stove
- Trash Chutes
- Tub/Shower
- Walk-In Linen / Storage Closet
- Water, Sewer & Garbage Paid
- Wheelchair Accessible
Pets
- No pets allowed
Housing Type
- 60% AMI
- Affordable
Availability
- Units Available
Community Amenities
- Bicycle Storage
- Camera Surveillance
- Community Room
- Elevator
- Key Fob Entry
- On-site Laundry Facilities
- Secure Access
- Smoking Only in Designated Areas
Parking
- Private Parking with Garages
Additional Fees
- Security Deposit: Equal to one month's rent

